Giới thiệu chung
Bể lắng lamella (hay còn gọi là bể lắng tấm nghiêng) được sử dụng để tăng hiệu quả lắng cặn trong các hệ thống xử lý nước. Nhờ cấu tạo gồm nhiều tấm lamella đặt nghiêng theo góc tối ưu, bể giúp rút ngắn thời gian lắng và giảm diện tích xây dựng so với bể lắng truyền thống.
Bể được ứng dụng trong:
- Xử lý nước mặt cấp sinh hoạt.
- Xử lý nước thải sinh hoạt và nước thải công nghiệp.
- Trạm cấp nước đô thị và nông thôn.
- Hệ thống tuần hoàn và tái sử dụng nước trong sản xuất.
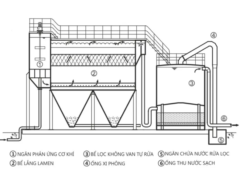
Cấu tạo của bể lắng lamella
Các bộ phận chính
-
Khung bể: Chế tạo từ thép phủ epoxy, composite hoặc inox, khả năng chống ăn mòn cao.
-
Cụm tấm lamella đặt nghiêng: Làm từ PP, PVC hoặc FRP, lắp đặt song song để tăng diện tích tiếp xúc và hiệu suất tách cặn.
-
Ngăn phân phối dòng chảy: Giúp nước vào bể được phân bố đều, tránh xáo trộn.
-
Ngăn thu nước sau lắng: Thu nước sạch sau quá trình tách bùn.
-
Đáy bể và đường xả bùn: Tập trung bùn lắng đưa về thiết bị xử lý bùn tiếp theo.
Nguyên lý hoạt động
Nước chứa cặn được dẫn vào bể. Khi đi qua các tấm lamella đặt nghiêng, tốc độ lắng giảm xuống, tạo điều kiện cho các hạt cặn bám và trượt xuống đáy bể. Bùn sau đó được gom và xả ra ngoài. Nước sạch được thu ở phần trên của bể.
Quá trình này:
- Tăng hiệu quả tách cặn.
- Giảm thời gian lưu nước.
- Giảm diện tích xây dựng bể.
Đặc điểm nổi bật
1. Hiệu suất lắng cao
Diện tích bề mặt lắng được tăng lên gấp nhiều lần, hiệu quả lắng tốt hơn so với bể lắng truyền thống.
2. Tiết kiệm diện tích
Thiết kế gọn, phù hợp các công trình có mặt bằng hạn chế.
3. Ứng dụng linh hoạt
Dùng cho xử lý nước cấp, nước mặt, nước tuần hoàn và nước thải công nghiệp.
4. Dễ bảo trì và thay thế
Cụm lamella có thể tháo rời, vệ sinh đơn giản, thay thế nhanh.
5. Chi phí vận hành thấp
Không tiêu tốn nhiều năng lượng, độ bền cao, vận hành ổn định.
6. Lắp đặt modul, mở rộng công suất dễ dàng
Chỉ cần bổ sung thêm modul lamella khi cần tăng lưu lượng xử lý.
Thông số kỹ thuật tham khảo
| Hạng mục | Giá trị tham khảo |
|---|---|
| Vật liệu chế tạo | Inox 304/316, Composite FRP, Thép phủ Epoxy |
| Góc đặt lamella | 55° ± 5° |
| Tăng diện tích lắng | 5 – 10 lần so với bể lắng thường |
| Lưu lượng xử lý | 500 – 15.000 m³/ngày đêm (tùy thiết kế) |
| Phương thức vận hành | Tự động hoặc bán tự động |
Ứng dụng
- Trạm xử lý nước sinh hoạt.
- Hệ thống xử lý nước mặt tại khu dân cư và đô thị.
- Xử lý nước thải nhà máy, khu công nghiệp.
- Dây chuyền sản xuất có tuần hoàn nước.
Báo giá và tư vấn kỹ thuật
Giá bể lắng lamella phụ thuộc vào vật liệu chế tạo, lưu lượng xử lý và mặt bằng lắp đặt.
Để nhận báo giá chi tiết, vui lòng liên hệ kỹ thuật.
Liên hệ ngay
Công ty Cổ phần Công nghệ Ánh Hà
Địa chỉ: 212 đường Chiến Thắng, phường Văn Quán, TP Hà Nội
Hotline: 0941.789.585
Email: kinhdoanh@nuocvamoitruong.vn
Website: www.nuocvamoitruong.vn
















Đánh giá Bể lắng Lamella – Giải pháp tăng hiệu suất lắng cặn trong xử lý nước
There are no reviews yet.